Products
当前位置:米兰体育在线登录入口>产品展示 > 智能立体车库系列
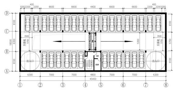
运行原理及特点 采用在同一层上用搬运台车或起重机平面移动,或使载车板平面横移实现存取停放车辆,亦可用搬运台车和升降机配合实现多层平面移动存取停放车辆。此种类型的设备大多为多层平面移动类,这种车库可以建
400-822-8286
13707400505
运行原理及特点
采用在同一层上用搬运台车或起重机平面移动,或使载车板平面横移实现存取停放车辆,亦可用搬运台车和升降机配合实现多层平面移动存取停放车辆。此种类型的设备大多为多层平面移动类,这种车库可以建成大型化、自动化的车库、容车密度大、存(取)车快捷,适宜建在大型住宅周围的地下,对机场、车站、繁华商业中心区、体育馆、办公楼等区域也适合。尤其是巷道长度长、层数不多的地下大容量存车库,用这种设备的技术经济性较好。


网址:mingdao369.com
邮编:414300
服务热线:400-822-8286
销售热线:13707400505
电话:0730-3798128
传真:0730-3753717
邮箱:yuanruijx@163.com
总公司地址:湖南省临湘市三湾工业园
扫一扫,关注我们
扫一扫,手机访问
COPYRIGHT © mingdao369.com ALL RIGHTS RESERVED. 米兰体育在线登录入口-米兰(中国) 版权所有